Новый шикарный пентхаус в районе Ла Кала
Откройте для себя эксклюзивный стиль жизни на первой линии моря.
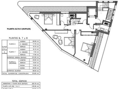
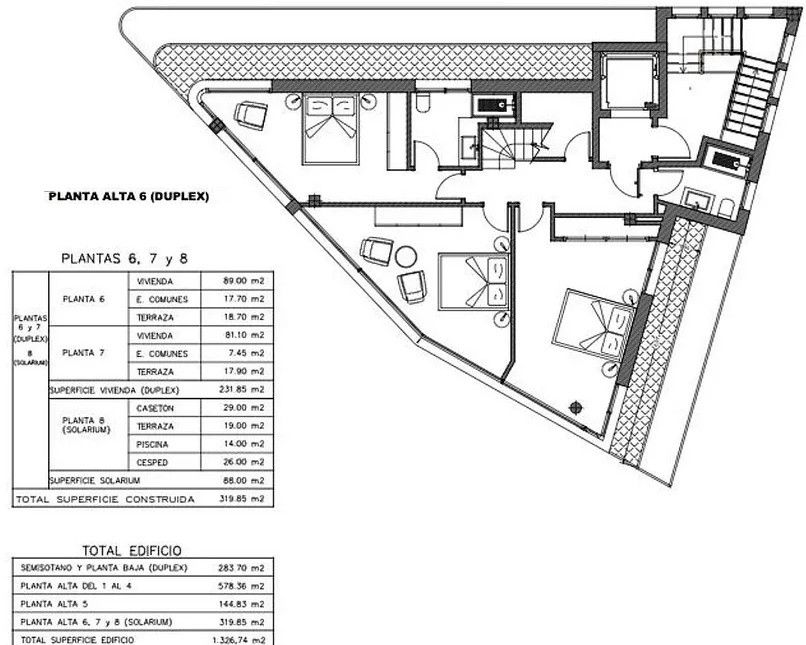
Впечатляющая резиденция из восьми элитных квартир с уникальной планировкой и безукоризненным качеством. На первом этаже расположена захватывающая двухуровневая квартира, в которой гармонично сочетается уют основного этажа с атмосферой исключительности верхнего уровня. На последующих этажах расположены стильные апартаменты, по одному на каждом этаже, предлагающие разнообразные варианты планировок, чтобы вы могли выбрать именно то, что подходит вашему образу жизни. На верхних этажах находится потрясающий двухуровневый пентхаус, обладающий приватной террасой на крыше, с которой открывается панорамный вид на морские просторы.
Здесь, среди бесподобных пейзажей, вы найдёте идеальное место для отдыха и наслаждения жизнью на берегу моря.
Воплотите свои мечты в реальность! И не забывайте — вместе с вашей покупкой вы получите TESLA Model 2 или аналогичную модель.
Начало строительства: 15 декабря 2024 года.
Дата сдачи ключа: второй семестр 2026 года.



















